The Tualatin Soil and Water Conservation District Headquarters is a ground-up building currently in Land Use review. The architectural project team consisting of Michael Parshall, Dave Hardister, Kayla Funk, and myself have been working diligently with members of the Soil and Water Conservation District to design a sustainable, mass-timber building for their new headquarters. This will be a building for the community with opportunities to provide educational moments around building systems, landscape integration, and using locally-sourced materials. Working with the landscape architects at Knot Studio, we have coordinated heavily on pushing and pulling the building form to allow the landscape to fully integrate with the design and make this a green and positive work environment. Other consultants involved are Holmes (structural engineering), Sazan Group (MEP), and Design + Build (interior design).
Building form and landscape Axon
Building form and landscape Axon
Community courtyard rendering
Community courtyard rendering
Entry promenade rendering
Entry promenade rendering
Exterior Elevation
Exterior Elevation
Ground Floor Plan
Ground Floor Plan
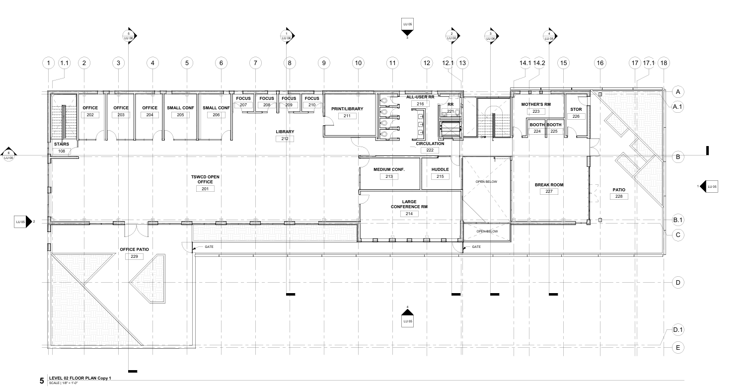
Second Level Plan
Second Level Plan
High-efficiency exterior wall assembly
High-efficiency exterior wall assembly
Staircase design axon
Staircase design axon
Schematic Design Sketch
Schematic Design Sketch
Schematic Design Sketch
Schematic Design Sketch
Back to Top